賃貸情報・売買情報
中古売住宅
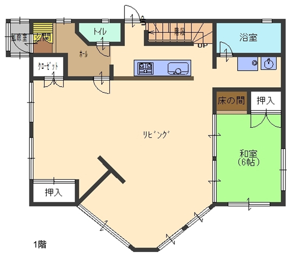
中古住宅
店舗から住宅へとフルリノベーションしたオシャレな物件!!
一部は店舗貸なので(入居者有り)賃貸収益があります!
店舗から住宅へとフルリノベーションしたオシャレな物件!!
一部は店舗貸なので(入居者有り)賃貸収益があります!
| 敷地面積 | 276.53㎡ |
| 床面積 | 1階 120.90㎡ 2階 58.37㎡ |
| 間取り | 4LDK+店舗(入居中)付 |
| 用途地域 | 第一種住居地域 |
| 構造 | 木造亜鉛メッキ鋼板葺2階建 |
| 土地権利 | 所有権 |
| 築年月 | 2000年5月(2015年10月全面リノベーション) |
| 駐車場 | 5台 |
| 取引態様 | 売主 |
大きな地図で見る
中古住宅
二階建住宅
二階建住宅
| 敷地面積 | 225.2㎡ |
| 床面積 | 1階82.67㎡ 2階66.24㎡ |
| 間取り | 4LDK |
| 用途地域 | 第一種低層住居専用地域 |
| 構造 | 木造アルミニウム板葺2階建 |
| 土地権利 | 所有権 |
| 築年月 | 昭和62年8月 |
| カーポート | 有り |
| 駐車場 | 2台分 |
| 取引態様 | 売主 |
| 備考 | 大規模リフォーム中 角地 閑静な住宅地 |
大きな地図で見る
中古売マンション
中古マンション
南向き。全室クロス張替え、木部塗装。
南向き。全室クロス張替え、木部塗装。
| 専有面積 | 63.93㎡ |
| 間取り | 2SLDK 地上14階建/3階 |
| 構造 | 鉄骨鉄筋コンクリート造 |
| バルコニー面積 | 8.26㎡ |
| 土地権利 | 所有権 |
| 築年月 | 平成8年1月 |
| 管理費 | 6,840円/月 |
| 修繕積立金 | 15,020円/月 |
| 駐車場 | 有(1台 5,000円) |
| 交通 | JR仙石線下馬駅徒歩6分 |
| 取引態様 | 売主 |
大きな地図で見る
新築売住宅
塩釜戸建
| 築年 | 2013年5月 |
| 構造 | 木造3階建 |
| 間取り | 3LDK |
| 土地面積 | 75.06㎡ |
| 建物面積 | 114.11㎡ |
| 都市計画 | 市街化区域 |
| 用途地域 | 商業地域,準工業地域 |
| 駐車場 | 有り |
| 現況/引渡日 | 完成/即時 |
| 交通 | JR仙石線 本塩釜駅 徒歩9分 |
| 取引態様 | 売主 |
大きな地図で見る








































