イメージプラン
※こちらに掲載されている価格は過去の参考価格です。現在、資材の高騰や円安の影響により大幅な価格変更が日々生じておりますので、価格に対してはその都度、お気軽にお問い合わせください。
自宅の庭にバイクガレージ・趣味部屋
※パース画像はイメージです。
【例 上記設計図のコンテナをオーダーした場合】
コンテナ本体(20Feet 1本) 850,000円
建築確認申請・設計費用 250,000円
基礎・設置人工 120,000円
通関税・諸経費 80,000円
配送費 75,000円
ラフタークレーン費用 60,000円
建具取付費(ドア1ヵ所と・FIX窓3ヵ所として) 200,000円
電気工事費 120,000円
内装費(床板・クロス等) 150,000円
===============================
TOTAL PRICE 1,905,000円 → 2,057,400円(in tax)
その他、整地費用や水道工事など設置する土地の状況・場所・オーダーの種類によって他作業費が別途発生します。 また、こちらの費用は参考価格ですので、オーダーの詳細によって価格は変動じます。 予めご了承の上、上記価格を参考にしてください。
1台のコンテナでも室内を区切り、二部屋にしたり、一部屋を物置にしたり玄関デッキにしたりと幅広くご提案可能です。ぜひあなただけのコンテナハウスを実現してください。
1台のコンテナでも室内を区切り、二部屋にしたり、一部屋を物置にしたり玄関デッキにしたりと幅広くご提案可能です。ぜひあなただけのコンテナハウスを実現してください。
会社の事務所をコンテナハウスで

※パース画像はイメージです。
【例 上記設計図のコンテナをオーダーした場合※水道工事は含まず】
コンテナ本体(40Feet3本) 5,250,000円
基礎・設置人工 550,000円
建築確認費用・設計費用 350,000円
通関税・諸経費 380,000円
配送費 230,000円
ラフタークレーン費用 180,000円
建具取付費(両開きドア1ヵ所・内部建具3ヶ所・引き違い窓5ヵ所・FIX窓1ヵ所として)
780,000円
電気工事費 230,000円
内装費(床板・クロス等) 380,000円
キッチン・トイレ設備等 300,000円
===============================
TOTAL PRICE 8,630,000円 → 9,320,400円(in tax)
その他、整地費用など設置する土地の状況や場所・オーダーの種類によって他作業費が別途発生します。また、水道工事費は土地の配管の状況によって大きく変動がある為、参考価格は算出できません。予めご了承の上、上記価格を参考にしてください。
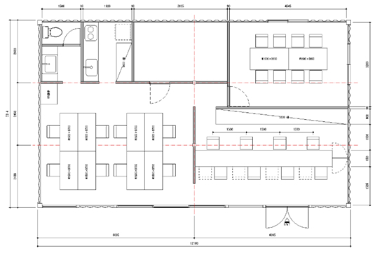
飲食店などの店舗をコンテナで

※パース画像はイメージです。
1台+20Feetコンテナ 2台(約48㎡・約24帖)
【例 上記設計図のコンテナをオーダーした場合※水道工事は含まず】
コンテナ本体(20Feet・40Feet各1台) 2,800,000円
基礎・設置人工 450,000円
建築確認費用・設計費用 380,000円
通関税・諸経費 220,000円
配送費 175,000円
ラフタークレーン費用 120,000円
建具取付費(両開きドア1ヵ所・引き違い窓3ヵ所・突き出し窓1ヵ所として) 750,000円
電気工事費 300,000円
内装費(床板・クロス等) 550,000円
カウンター・棚などの造作物 550,000円
ウッドデッキ・外構工事 650,000円
===============================
TOTAL PRICE 6,945,000円 → 7,500,600円(in tax)
その他、整地費用など設置する土地の状況・オーダーの種類によって他作業費が別途発生します。また、水道工事費は土地の配管の状況によって大きく変動がある為、参考価格は算出できません。予めご了承の上、上記価格を参考にしてください。
コンテナ空間の可能性は無限大です。
掲載以外のコンテナハウスもぜひお気軽にご相談ください。


















