コンテナ利用イメージ
一般用宿舎・ホテル


40ftを4室に区切り、それぞれの部屋にユニットバスを設置。コンテナとコンテナの間に屋根や通路なども建築可能。プライベート空間も考慮され、一般向けの宿舎に向いています。
40ftを3室に区切り、5畳の和室仕様にして2台連結。それぞれの部屋にユニットバスや電化製品、下駄箱などもしっかりと設置し、宿舎やホテルに。上記の設計図は40ftを8台設置し、24部屋分に。
自社作業員宿


40ftをそのまま1室に設計。ベット4台、部屋の中にユニットバス設置。自社の作業員用宿向け。
40ftを2室に区切り、間にユニットバスを設け、どちらの部屋からも行き来が出来るように設計。
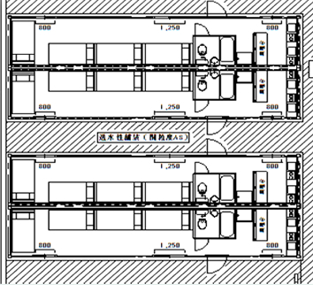
Shower room image

20ftを背中合わせにし、それぞれにトイレ、シャワールームを設置。
40ftにトイレ3台・シャワーブース3台・脱衣所・ロッカー・洗濯機など水回り形を一括設置。
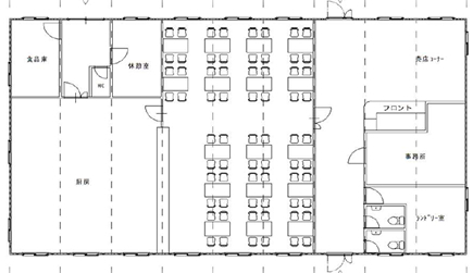
Restarant image
Reception image
大規模の宿舎の場合、食堂や厨房・フロントなども欠かせない設備となります。
40ftコンテナを縦に9台連結して間の壁をすべて取り除き、設計図の様な広い空間を演出することも可能となります。
※掲載されている図面・画像はすべてイメージです。

















